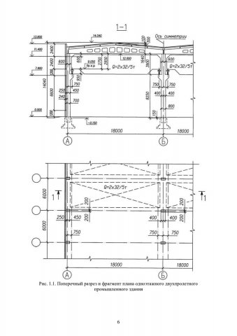
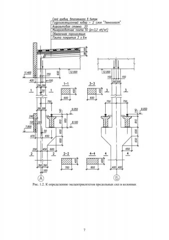
Библиографическое описание:Железобетонные конструкции одноэтажных промышленных зданий с мостовыми кранами : учебно-методическое пособие / Сиб. федер. ун-т, Инж.-строит. ин-т ; сост.: А. В. Ластовка, Т. В. Данченко, И. А. Поляков. - Электрон. текстовые дан. (pdf, 6,1 Мб). - Красноярск : СФУ, 2021 (2021-11-08). - 124 с. - Загл. с титул. экрана. - Изд. № 2021-14924 : Б. ц. - Текст : электронный.
Аннотация:Данное пособие позволяет получить необходимые практические навыки по проектированию конструкций из железобетонных конструкций, а также способствует развитию навыков для ведения исследовательских работ. Предназначено для студентов специальности «Промышленное и гражданское строительство» всех форм обучения.